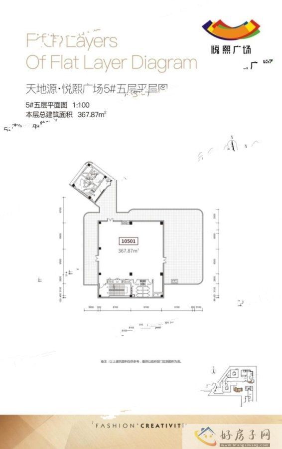
天地源悦熙广场
天地源悦熙广场售完
均价: 16000元/平米 (有效期至:)
早教机构医疗配套商场超市